architecte desa
Architecte à Paris et dans Le Perche

Avant/après : Un appartement tourné vers sa terrasse

par Camille Hermand ― 28, 01, 2022 ― decoration, design, architecture, lifestyle

Redistribuer le plan d'un duplex pour profiter pleinement de ses atouts

Redistribuer le plan d'un duplex pour profiter pleinement de ses atouts

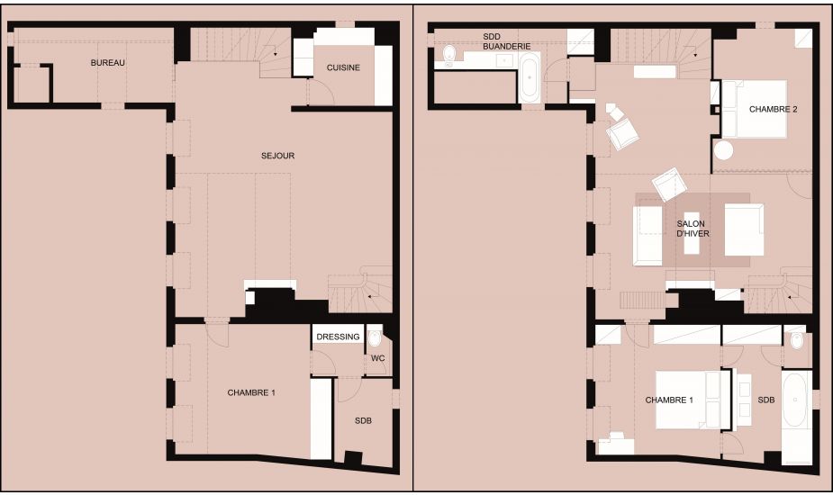
A l’origine, ce 120m2 sous les toits offrait une succession de pièces fermées étouffantes, qui rendait l’ensemble pas du tout lumineux. La belle terrasse, avec vue imprenable sur les plus beaux monuments du centre de Paris, était laissée à l’abandon (Photo 14). Située au deuxième niveau, quelques marches la séparaient d’une grande mezzanine, exploitée comme chambre d’amis, avec beaucoup de place perdue. Au niveau inférieur, les pièces de vie et une autre chambre restaient sagement confinées dans leur espace clos. Camille Hermand a décloisonné les murs afin de mieux lier les deux niveaux. Une rambarde très aérée donne sur le grand salon en contrebas (Photos 3 et 4). Après destruction de la salle de bains du haut, une cuisine ouverte est montée au niveau supérieur où la mezzanine offrait assez de surface pour disposer une grande table, et même un petit salon (Photo 10). Un beau parquet sur toute la longueur accentue encore les larges perspectives (Photo 4). La nouvelle cuisine est toute proche de la terrasse, promesse d’apéros et de dîners sous les étoiles.

Au niveau bas, la décoration du grand salon a été revue. Les murs et la cheminée peints en blanc ou rose pâle laissent le champ libre à la vue extraordinaire sur les toits et les monuments parisiens, véritable atout de cet appartement (Photos 1 et 2). L’ambiance est reposante et chaleureuse, grâce au nouveau parquet en bois blond (Photo 11). Des bibliothèques ont trouvé leur place dans les recoins perdus, ainsi que près de l’escalier de l’entrée (Photos 1 et 9).

Une chambre d’amis/bureau a remplacé l’ancienne cuisine. La pièce, agrandie et dotée d’une baie vitrée, bénéficie de la lumière du salon, en évitant d’étouffer sous le volume mansardé (Photo 8). Tout près, l’ancien bureau très étroit a été transformé en salle de bains d’invité et buanderie (Photos 12 et 13). La suite principale n’a pas bougé, mais elle a été réaménagée, ainsi que sa salle de bains et son dressing (Photos 5, 6 et 7). Réorganisé, modernisé, l’appartement a gardé les éléments anciens qui font son charme, poutres apparentes et escaliers anciens. Il jouit désormais au quotidien de sa terrasse avec vue imprenable sur la ville lumière.

Texte : Caroline Tossan

Photos : © Agathe Tissier

Projet : Quincampoix

autres articles

Instagram